Vivienda en Navia (Asturias).

Situada en la Avenida Manuel Suárez, 11.

Property in Lease
Plano situación

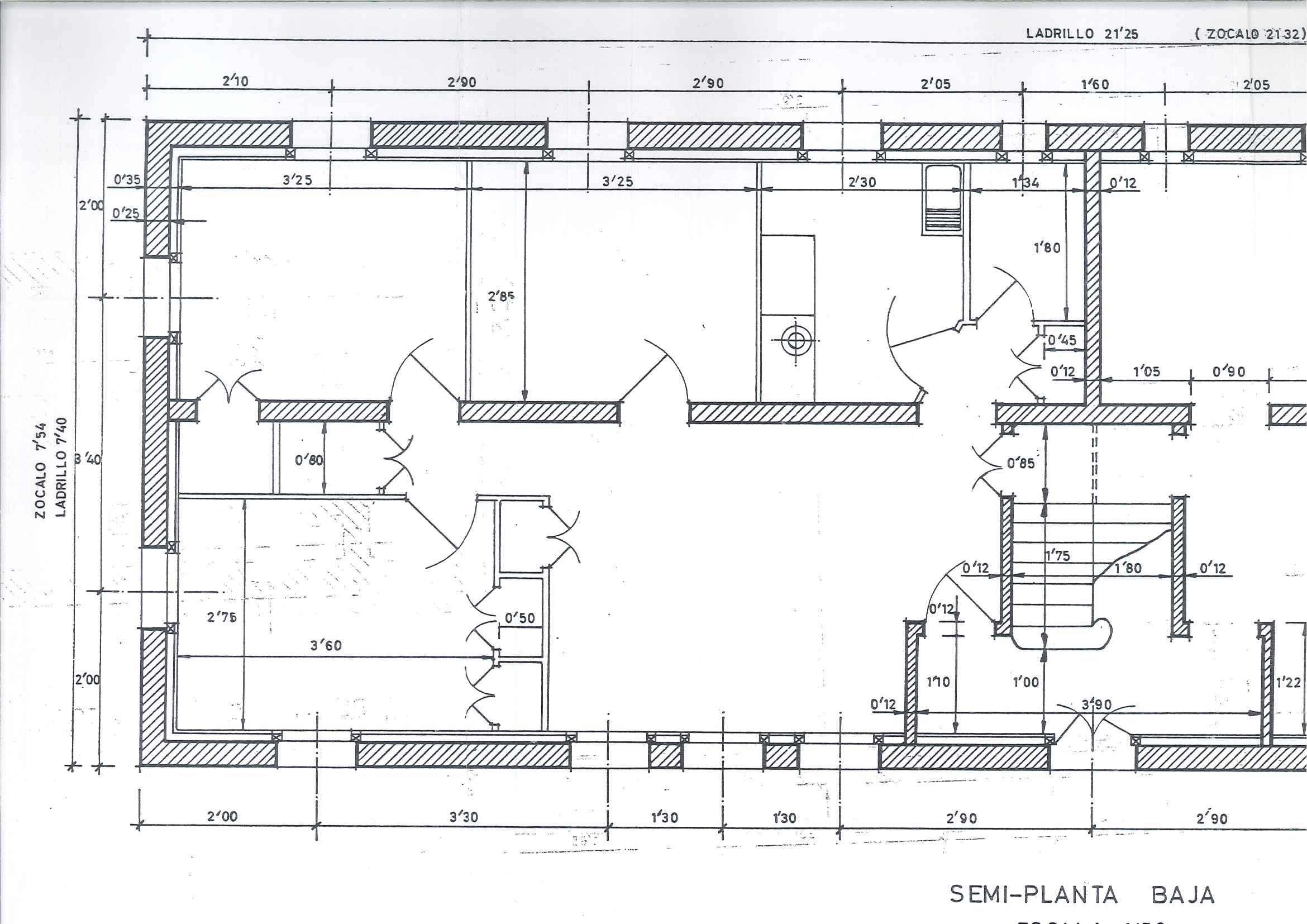
Vivienda en alquiler, consta de 3 dormitorios, salón, cocina y 1 baño. Esta bien cuidada y dispone de algunos muebles.

La vivienda tiene de una superficie construida de 80 m². Esta situada en la planta baja (acceso unicamente peatonal).

Se encuentra en el mismo recinto de la estación (zona ajardinada alrededor) esta integrada dentro del propio núcleo de Navia, bien comunicada, a 23 minutos de Ribadeo y a 15 minutos de Luarca.

Necesita revisión de la instalación eléctrica (no dispone de alta en el suministro).

Precio alquiler 330 €/mes.

IBI año 2024: 72,37 €/año.

Certificado de Eficiencia Energética :  F

  1. Fachada
  2. Habitación
  3. Cocina
  4. Plano
Skip carousel
Plano situación
Plano situación
Fachada
Fachada
Habitación
Habitación
Cocina
Cocina
Plano
Plano
Fachada
Habitación
Cocina
Plano
Skip geolocation