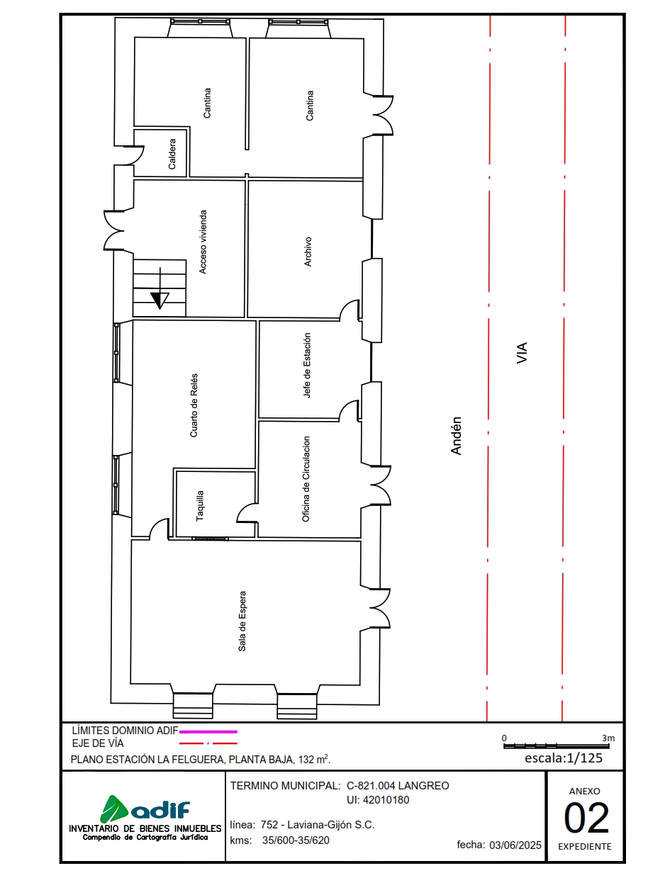
La Felguera - Langreo (Asturias), antigua estación de viajeros.

Langreo

Inmoble en Alugueiro
Exterior

Antigua Estación de Ferrocarril, consta de parcela con una superficie de 2.400 m² y edificio de 396 m².

Ideal para hostelería-turismo rural.

Se ubica al lado de la línea férrea de Gijón- Sanz Crespo- Laviana.

  1. Plano edificio
  2. Plano situación
  3. Fotografia
  4. Interior
Saltar carrusel
Exterior
Exterior
Plano edificio
Plano edificio
Plano situación
Plano situación
Fotografia
Fotografia
Interior
Interior
Plano edificio
Plano situación
Fotografia
Interior
Saltar xeolocalización